Leave a Message

Thank you for your message. We will be in touch with you shortly.

Explore Our Properties

Property Description

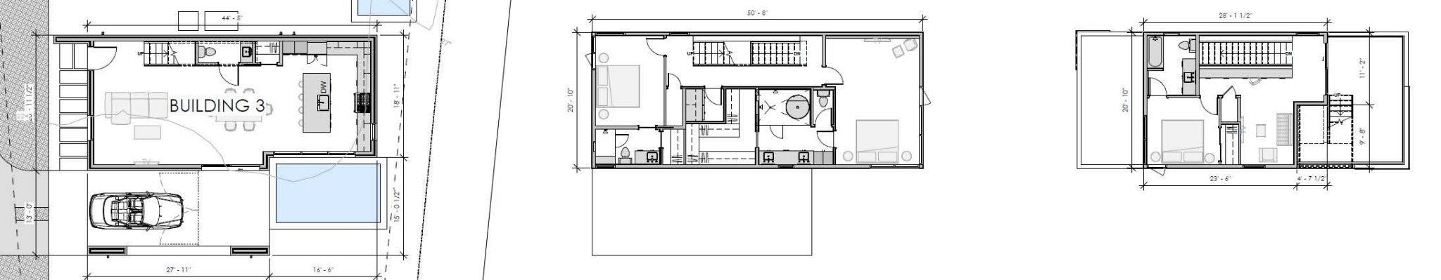
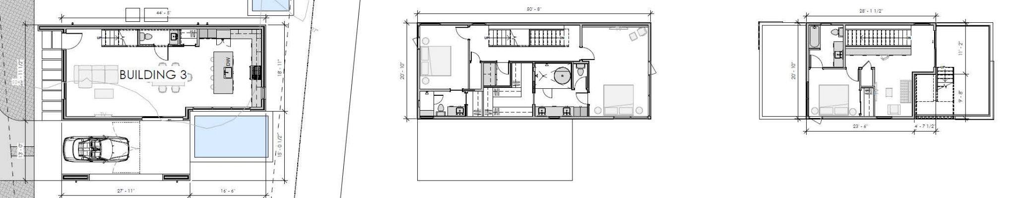
Introducing a striking to-be-built luxury residence in the highly coveted Barton Hills neighborhood, where sophisticated design meets timeless craftsmanship. This modern home is thoughtfully planned with wide-plank hardwood flooring, designer tile in spa-inspired baths and a sleek standing-seam metal roof that enhances both durability and architectural appeal. The interior is envisioned with dramatic ceiling heights, walls of expansive windows and an open-concept layout that invites abundant natural light and effortless indoor-outdoor living. A chef's kitchen is designed to impress, featuring custom cabinetry, premium stone countertops, a statement island and top-tier stainless steel appliances ideal for elevated entertaining. Luxurious bathrooms offer floating vanities, upscale fixtures and oversized walk-in showers for a resort-style experience. Energy-efficient, high-performance windows, smart home technology and integrated security features provide comfort, privacy and peace of mind. Situated on a generous, lot with a pool, outdoor living spaces and amazing downtown views. This exceptional property is just minutes from Zilker Park, Barton Springs and downtown Austin--offering a rare opportunity to customize a new construction masterpiece in one of Austin's most prestigious settings. Also available for lease. Contact agent for details. Information provided by seller & to be independently verified by the buyer.

Overview

Property Status
For Sale
Lot Size
0.29 Acres
MLS ID
9265501
Property Type
Residential
Year Built
2026

Features & Amenities

Neighborhood
Zilker/Barton Hills
Water Frontage
None
View Description
See Remarks, Downtown, Park/Greenbelt
Stories
3
Garage Spaces
2.0
Water Source
Public
Utilites
Electricity Available, Natural Gas Available, Sewer Available, Water Available
Pool
Fenced, In Ground, Outdoor Pool
Roof
Metal
Lot Features
Curbs, Few Trees, Level, Open Lot, Trees-Medium (20 Ft - 40 Ft), Trees-Moderate
Parking
Carport
Heat Type
Central
Air Conditioning
Central Air
Appliances
Range
Other Interior Features
Built-in Features
Sewer
Public Sewer
Substructure
Slab
Disability Features
None
Other Exterior Features
Balcony
Elementary School
Barton Hills
Middle School
O Henry
High School
Austin
School District
Austin ISD
Sales Price
$2,075,000
Real Estate Tax
$13,121/yr

Downloads

1403 Barton Hills DR # 3

Schedule a Tour

We would love to help you see this beautiful home! As a full-service brokerage, we can help you tour. Please submit an offer, and answer questions about the buying process.

Thank you

for your interest in 1403 Barton Hills DR # 3, Austin, TX 78704

1403 Barton Hills DR # 3
Navigate
Zilker/Barton Hills

Explore Zilker/Barton Hills

read more
1403 Barton Hills DR # 3
explore in 3d

Mortgage Calculator

Estimate your monthly mortgage payment, including the principal and interest, property taxes, and HOA. Adjust the values to generate a more accurate rate.
$0,000 Your Payment 20 15 65
$0,000 Your Payment

I'm Interested In

1403 Barton Hills DR # 3

or
  • CallKinan Beck

    License #503837

    (512) 762-7001
  • Follow Us On Instagram