Leave a Message

Thank you for your message. We will be in touch with you shortly.

Explore Our Properties

Property Description

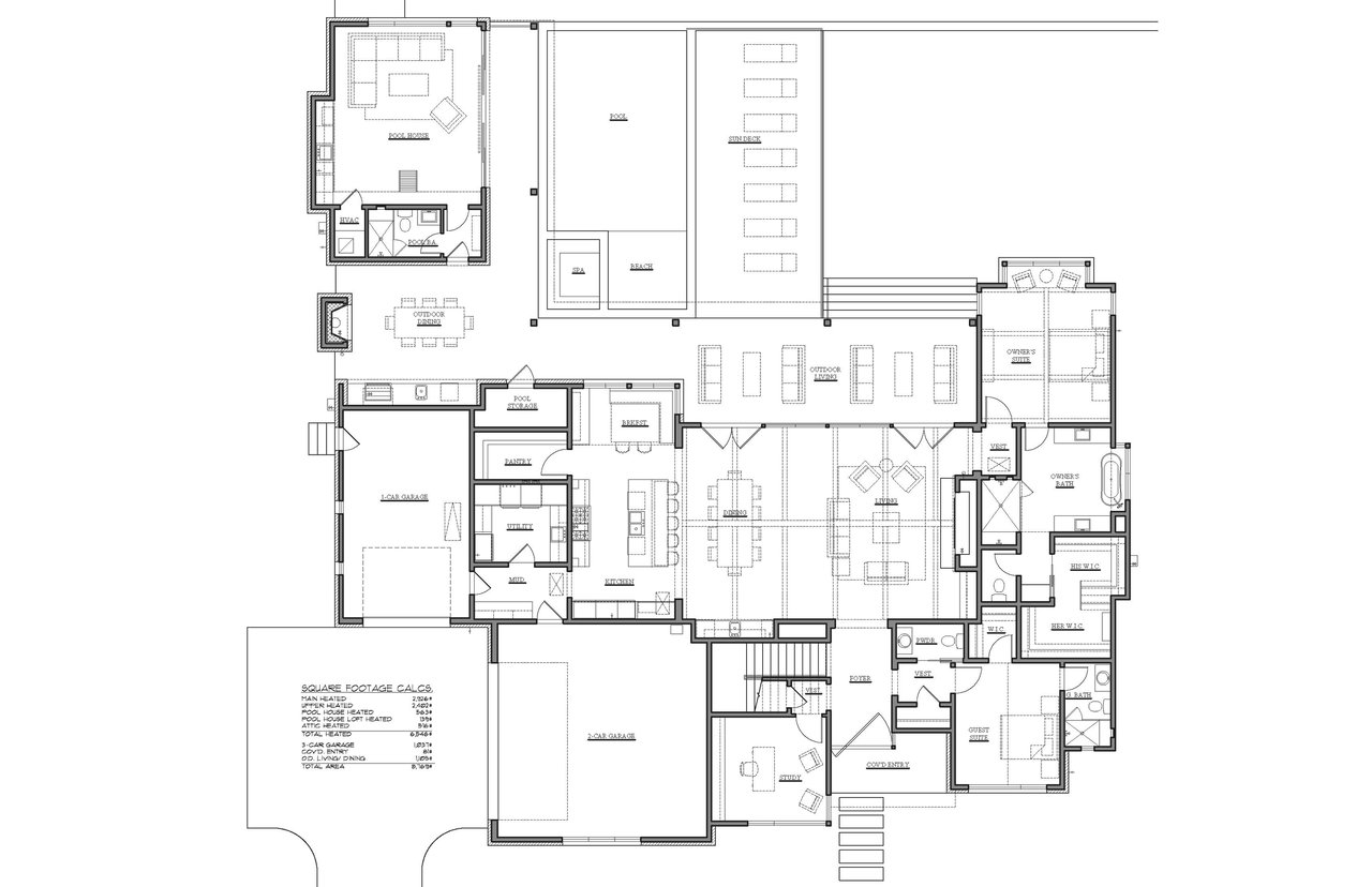
This property is shovel-ready and can be purchased with plans, demo/building permits, tree/topo/boundary survey , and everything needed to build NOW!! Build your dream home in Iconic Barton Hills! Overlooking Barton Creek with spectacular views of the greenbelt. The plans will include a stunning property with approx 6,550 sqft of heated living space and over 1,100 sqft of outdoor entertaining space. Close to Barton Hills Elementary, Zilker Park, Barton Springs, South Lamar, and easy Downtown access.

Overview

Property Status
For Sale
Property Type
Residential
Year Built
1973

Features & Amenities

Total Area
0.39 Acres
Garage Spaces
2
Utilites
Cable Available, Electricity Available, Natural Gas Available, Phone Available, Sewer Connected, Water Available
Heat Type
Central
Air Conditioning
Central
Fireplace
1/Family Room, Wood Burning
Appliances
Dishwasher, Disposal, Gas Range
Other Interior Features
Bookcases, Ceiling Fan(s), Counter-Granite, Interior Steps, Primary Bedroom on Main
Elementary School
Barton Hills
Middle School
O Henry
High School
Austin
School District
Austin
Real Estate Tax
$40,440/yr

Downloads

2306 Forest Bend Dr

Schedule a Tour

We would love to help you see this beautiful home! As a full-service brokerage, we can help you tour. Please submit an offer, and answer questions about the buying process.

Thank you

for your interest in 2306 Forest Bend Dr, Austin, TX 78704

2306 Forest Bend Dr
Navigate

Mortgage Calculator

Estimate your monthly mortgage payment, including the principal and interest, property taxes, and HOA. Adjust the values to generate a more accurate rate.
$0,000 Your Payment 20 15 65
$0,000 Your Payment

I'm Interested In

2306 Forest Bend Dr

or
  • CallKinan Beck

    License #503837

    (512) 762-7001
  • Follow Us On Instagram